Triamgle house
Triangle House
Survey Drawings
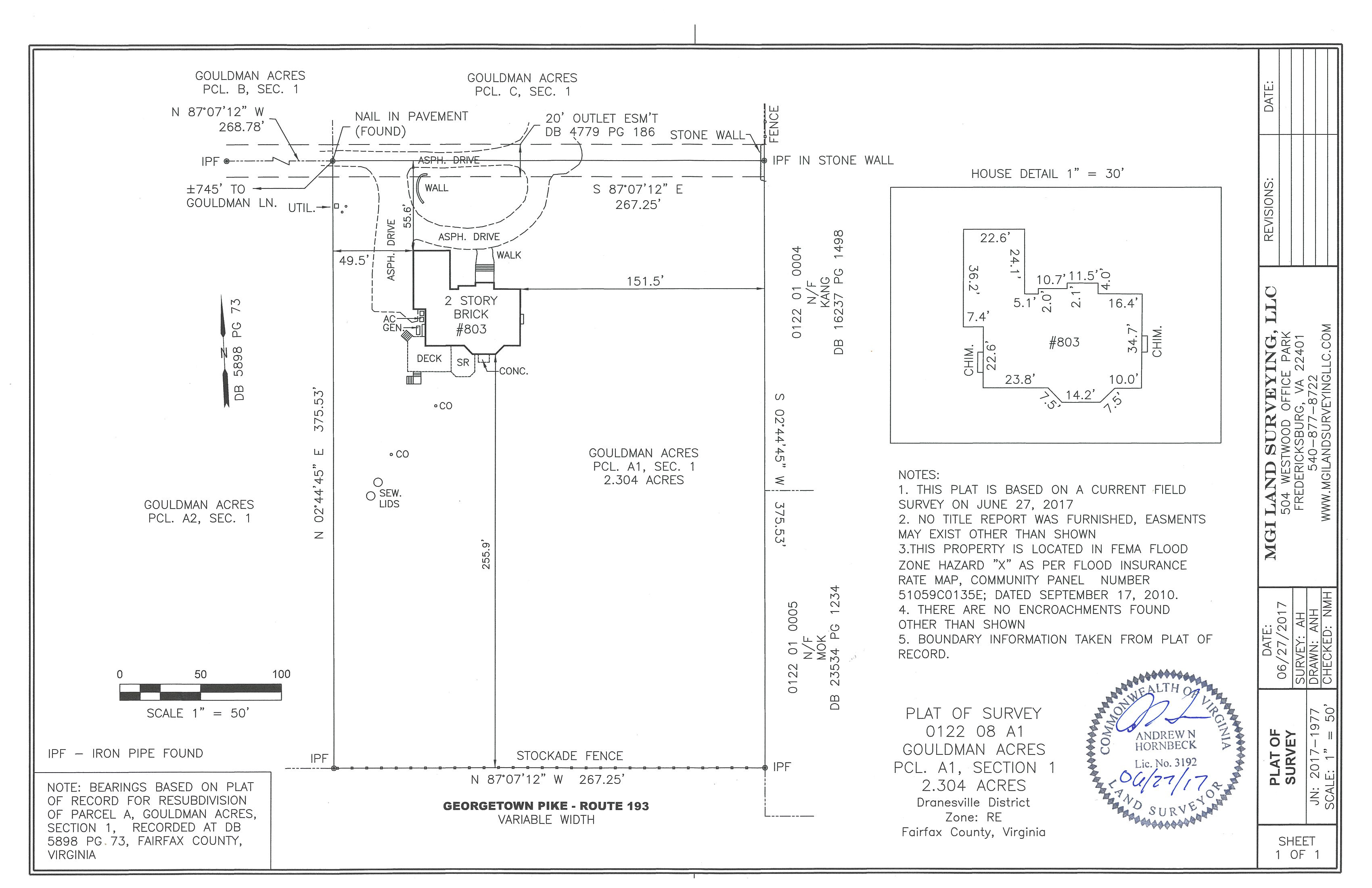
Plat
Satellite Plat
Satellite Plat (wide)
Simplified Satellite Plat (wide)
Septic as-built
FiOS Planned
Floor Plans

803 Gouldman Plat